IMMOBILE IN ASTA IN Via Cavour, 44, San Giuliano Milanese

San Giuliano Milanese (Milano)

Rif: ASTA.Via Cavour, 44, San Giuliano Milanese
Condividi Linkedin Whatsapp Stampa
A partire da € 137.625
Asta
63 Mq
3 Vani
Classe energetica G
2 Camere
1 bagno
Garage
Ascensore
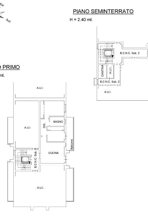
Appartamento posto al primo piano composto da cucina con angolo cottura, disimpegno, due camere, bagno, balcone, locale cantina al piano interrato e box ad uso autorimessa pertinenziale all'appartamento.



-------

Acquista tramite asta giudiziaria assistita dalla nostra agenzia immobiliare Safehouse Srl. La Società fornisce assistenza per tutto l'iter procedurale:
* Ricerca immobile in base alle esigenze del cliente.
* Visione dell'immobile.
* Studio di fattibilità del mutuo mediante primari istituti bancari convenzionati.
* Esame della perizia e della ulteriore documentazione relativa alla procedura esecutiva.
* Indagine sull'attuale stato dell'immobile (manutentivo/occupazione).
* Indice di convenienza all'acquisto e calcolo di tutte le imposte / spese accessorie, in aggiunta al prezzo di aggiudicazione.
* Assistenza per la partecipazione in asta.
* Ritiro del verbale di aggiudicazione, verifica e consegna del Decreto di Trasferimento.

SAFEHOUSE sostiene e segue i propri clienti sia nell'acquisto di un immobile in asta, sia sull'estinzione dei debiti sul proprio immobile.
Se hai un immobile pignorato siamo in grado di analizzare la tua posizione debitoria, offrendoti diverse possibilità per affrontare ogni singola procedura e individuare la soluzione migliore: - Valutazione della proprietà
* Individuazione del valore di mercato
* Analisi della posizione debitoria
* Intervento diretto con i creditori
* Definizione del saldo e stralcio di tutte le posizioni.
Nessun costo sarà a carico del proprietario per tutte le fasi di analisi e trattative di stralcio.
Per fissare una consulenza gratuita e non vincolante per avere informazioni sullo svolgimento dell'asta, sulle tempistiche, modalità ed i termini di incarico è possibile chiamare il numero 02.82959496
L'ESATTEZZA DEI DATI PUBBLICATI SARA' CONFERMATA IN SEDE DI CONSULENZA.
Ulteriori foto e planimetrie disponibili relative all'immobile saranno consultabili previo vostro contatto.

Dettaglio immobile

Contratto Vendita
Asta si
Rif ASTA.Via Cavour, 44, San Giuliano Milanese
Prezzo € 137.625
Provincia Milano
Comune San Giuliano Milanese
Indirizzo Via Camillo Benso di Cavour 44
Superficie 63 mq
Vani 3
Camere 2
Bagni 1
Classe energetica G (DL 192/2005)
EPI 175 kwh/m2 anno
Piano 1 / 5
Riscaldamento centralizzato
Condizioni abitabile
Spese condominiali € 100
Anno di costruzione 1980
Arredato si
Ascensore si
Garage singolo si
Cantina si
Cucina angolo cottura
Balcone si

Consistenze

Descrizione Superficie Sup. comm.
Principali
Immobile - 1° piano 63 Mq 63 Mqc
Totale 63 Mqc

Planimetrie

Richiedi maggiori informazioni

Autorizzazione al trattamento dei dati personali+
Dichiaro di aver letto l'informativa sulla privacy ed accetto le condizioni d'utilizzo del servizio.
Riempi il campo con il codice riportato nell'immagine*
Codice Captcha
Chiamaci Contattaci