Appartamento in vendita a Milano Via Luigi Pasteur N.16

Milano - zona Pasteur

Rif: ASTA VIA LUIGI PASTEUR N.16 MILANO (MI)
Condividi Linkedin Whatsapp Stampa
A partire da € 205.538
Asta
87 Mq
3 Vani
Classe energetica F
2 Camere
1 bagno
Ascensore
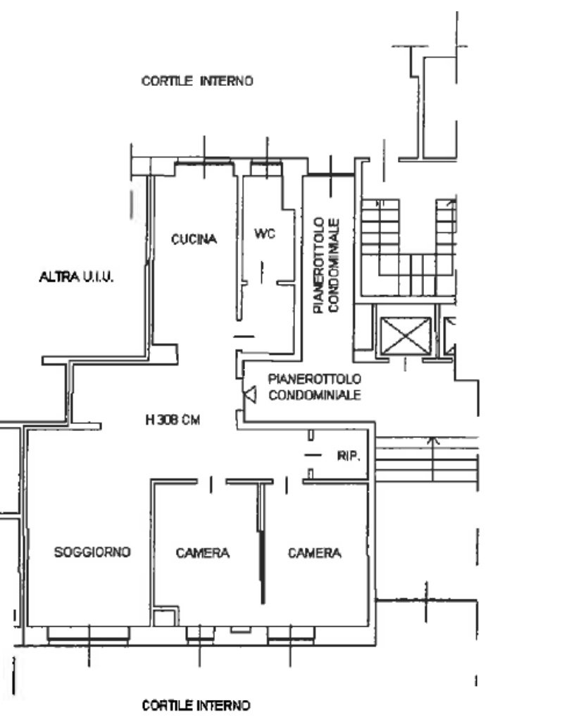
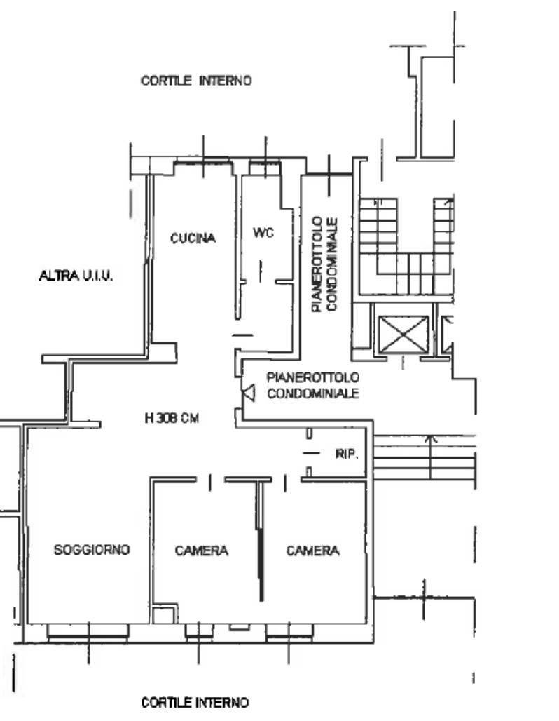
Abitazione al piano rialzato unita ad un ufficio (che non fa parte del Lotto in vendita) posta all'interno di un fabbricato residenziale

-------

Acquista tramite asta giudiziaria assistita dalla nostra agenzia immobiliare Safehouse Srl. La Società fornisce assistenza per tutto l'iter procedurale:
* Ricerca immobile in base alle esigenze del cliente.
* Visione dell'immobile.
* Studio di fattibilità del mutuo mediante primari istituti bancari convenzionati.
* Esame della perizia e della ulteriore documentazione relativa alla procedura esecutiva.
* Indagine sull'attuale stato dell'immobile (manutentivo/occupazione).
* Indice di convenienza all'acquisto e calcolo di tutte le imposte / spese accessorie, in aggiunta al prezzo di aggiudicazione.
* Assistenza per la partecipazione in asta.
* Ritiro del verbale di aggiudicazione, verifica e consegna del Decreto di Trasferimento.

SAFEHOUSE sostiene e segue i propri clienti sia nell'acquisto di un immobile in asta, sia sull'estinzione dei debiti sul proprio immobile.
Se hai un immobile pignorato siamo in grado di analizzare la tua posizione debitoria, offrendoti diverse possibilità per affrontare ogni singola procedura e individuare la soluzione migliore: - Valutazione della proprietà
* Individuazione del valore di mercato
* Analisi della posizione debitoria
* Intervento diretto con i creditori
* Definizione del saldo e stralcio di tutte le posizioni.
Nessun costo sarà a carico del proprietario per tutte le fasi di analisi e trattative di stralcio.
Per fissare una consulenza gratuita e non vincolante per avere informazioni sullo svolgimento dell'asta, sulle tempistiche, modalità ed i termini di incarico è possibile chiamare il numero 02.82959496
L'ESATTEZZA DEI DATI PUBBLICATI SARA' CONFERMATA IN SEDE DI CONSULENZA.
Ulteriori foto e planimetrie disponibili relative all'immobile saranno consultabili previo vostro contatto.

Dettaglio immobile

Contratto Vendita
Asta si
Rif ASTA VIA LUIGI PASTEUR N.16 MILANO (MI)
Prezzo € 205.538
Provincia Milano
Comune Milano
Zona Pasteur
Indirizzo Via Luigi Pasteur 16
Superficie 87 mq
Vani 3
Camere 2
Bagni 1
Classe energetica F (DL 90/2013)
Riscaldamento centralizzato
Condizioni abitabile
Spese condominiali € 150
Anno di costruzione 1970
Ascensore si
Cucina abitabile

Consistenze

Descrizione Superficie Sup. comm.
Principali
Immobile - piano rialzato 87 Mq 87 Mqc
Totale 87 Mqc

Planimetrie

Richiedi maggiori informazioni

Autorizzazione al trattamento dei dati personali+
Dichiaro di aver letto l'informativa sulla privacy ed accetto le condizioni d'utilizzo del servizio.
Riempi il campo con il codice riportato nell'immagine*
Codice Captcha
Chiamaci Contattaci